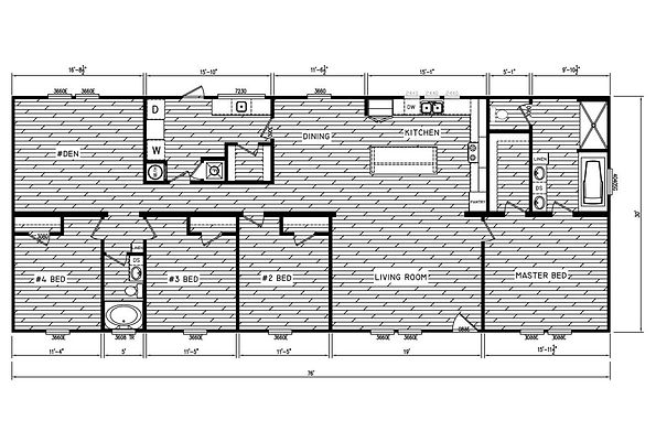
Creekside Series / The Mulberry Extra CS-3222+4


Creekside Series / The Mulberry Extra CS-3222+4
Built By:
Timber Creek Housing
4
Bedroom
2
Bath
2280
sqft
Multi-Section
The Mulberry Extra CS-3222+4, from the Creekside Series, exemplifies a masterful blend of luxury and practicality. This stunning residence offers 4 bedrooms, 2 bathrooms, and a generous 2280 square feet of elegantly designed living space. With an emphasis on refined and functional elegance, The Mulberry Extra features spacious living areas perfect for entertaining and family gatherings, alongside serene, private spaces ideal for relaxation and personal retreat. Designed for those who seek a lifestyle that marries grandeur with daily comfort, The Mulberry Extra is a model of sophisticated architectural design. Step into this luxurious environment, where every square foot is meticulously crafted to enhance your living experience, providing a backdrop for a life well-lived.
Construction
Additional Specs: 2 x 4 Top & Bottom Plate / 4" Interior Walls / LVL Ridge Beam Per Print (Doubles) / ALPHA Adhesive Drywall Installation Process
Exterior Wall On Center: 16" O.C.
Exterior Wall Studs: 2 x 4 Exterior Walls
Floor Decking: 3/4" T&G OSB Floors
Floor Joists: 32 wides: 2x8 24” O.C. to 2x8 16” O.C / 28 wides: 2x6 19.02” O.C. to 2x6 16” O.C. / 16 wides: 2x8 16” O.C.
Side Wall Height: 8’-6” Sidewall Height
Roof Decking: 7/16" OSB Roof Decking
Insulation (Floors): R-11
Insulation (Walls): R-11
Insulation (Ceiling): R-21
Request a Price Quote
Floorplan

